• メールで送る
  • 物件情報を スマートフォンで見るGo to https://maedacom.jp/extra/11390/

バークレーンワセダ

Bark Lane 早稲田

【毎月インターネット料無料】更新時、エアコン・水回り清掃無料でサービスします!

  • 東京メトロ東西線
    早稲田
    徒歩6
  • 東京メトロ有楽町線
    江戸川橋
    徒歩9

360度パノラマ

下記をクリックすると物件の動画が見られます。

スタッフからのおすすめポイント

2026.02.13 m m

東西線「早稲田」駅徒歩6分、有楽町線「江戸川橋」駅も徒歩圏内の好立地。
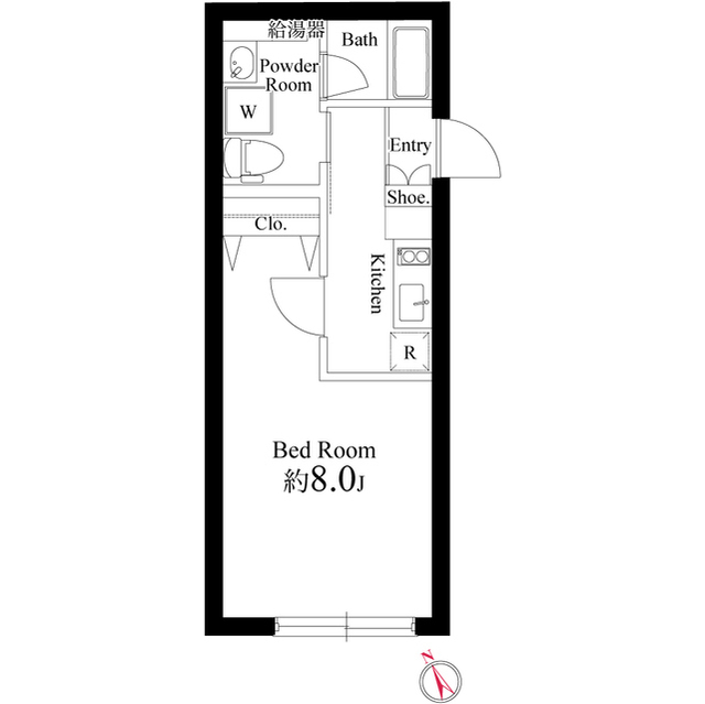
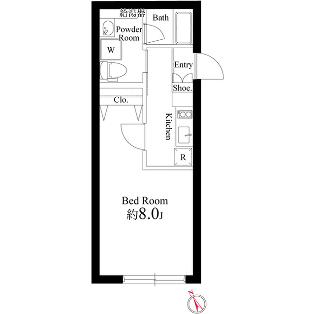
ネット無料で希少な1DKメゾネット(404号室)を募集中です!
築浅・オートロック完備で、仕事とプライベートを分けた快適な一人暮らしが叶います♪

2025.12.26 k y

東西線早稲田駅から徒歩6分。有楽町線も利用可能で、江戸川橋駅から徒歩9分でアクセス良好の好立地物件となります。
2021年築の築浅物件で、現在募集中の404号室は広々40㎡メゾネットタイプのお部屋で生活環境を分けられます!
またウォークインクローゼット付きで収納豊富です。
インターネット使い放題となっておりますので、どんな方にもおすすめの物件となります!

空室賃料一覧

Bark Lane 早稲田バークレーンワセダ

※お部屋探しのお客様用となります。

空室はお問い合わせください

設備・仕様

設備
  • セキュリティ不審者の侵入を防ぐカラーTVモニター付きオートロックシステム
    玄関扉にはキーチェーンより防犯性の高いドアガード
    夜間の帰宅で安心な人感センサーライト
    安全性に配慮し、共用部には防犯カメラを設置
    プライバシーに配慮したダイヤル式メールボックス
    24時間利用可能な宅配ボックス
    バール攻撃に対して高い防犯性能を発揮する鎌デッドボルト
  • サニタリーレンジフード・キッチン下収納付きIH2口システムキッチン
    キッチン、洗面に使いやすいシングルレバー混合水栓
    メタル調シャワーヘッド
    24時間定風量換気システム付浴室換気乾燥暖房涼風機
    お湯張り機能付きバス
    浴室の床には乾きが早く衛生的な浴室環境を保つ楽観フロア
    浴室には湯温の設定が簡単サーモスタット水栓
    バスルーム・トイレの独立設計で快適な毎日
    清潔な暖房便座付き温水シャワートイレ
    清潔感溢れるスタイリッシュな鏡裏収納付き独立洗面台
    浴室洗濯機置場
    給水ホースが外れても自動で水が止まる緊急止水弁内蔵の洗濯用水栓
    振動を軽減し漏水事故を防ぐ洗濯機防水パンを室内に設置
    室内物干し有り
  • ルームスペック玄関には収納力の高いトール型シューズボックス
    大切なワードローブをたっぷり収納できるウォークインクローゼット※Gタイプのみ
    衣類を収納できるクローゼット※A,B,C,D,E,Fタイプは中型
    室内を快適に保つエアコンを居室に設置※Gタイプは2基
    室内物干し有り
    照明を自由に演出できるダウンライト※Gタイプのみ
    ペアガラス仕様
    つまづきに配慮した安全設計のフラットフロア※一部除く
    操作性に優れたワイドスイッチ
    電話回線とテレビ・インターネット端子が一体化されたマルチメディアコンセント
  • その他外観はスタイリッシュなコンクリート打ち放し
    Wi-Fi・インターネット使い放題!
    ※最大速度 有線:1Gbps 無線:300Mbps ※つなぐネットコミュニケーションズ
    多彩な番組を楽しめるBS・110度CS対応※別途費用
    共用部内廊下
    敷地内ゴミ置場
    自転車置場5台(先着)※月額550円(税込)
    二人入居可
  • ※図面と現況が異なる場合、現況優先とさせて頂きます。

アクセスマップ

※緯度経度情報等の誤差により、実際の場所と異なる場合があります。 大きい地図で見る

物件概要

物件名 Bark Lane 早稲田
住居表示 162-0041東京都新宿区早稲田鶴巻町541-1アクセスマップ
交通
東京メトロ東西線「早稲田」駅 徒歩6分
東京メトロ有楽町線「江戸川橋」駅 徒歩9分
総戸数 15戸
間取 1LDK
竣工 2021年2月25日
構造及び規模 RC 地上5階建
取引態様 代理
  • メールで送る
  • 物件情報を スマートフォンで見るGo to https://maedacom.jp/extra/11390/
お部屋探しのお客様用
お問合せフォーム

同じエリアの物件一覧

その他の物件情報

インターネット無料の先進マンション!山手線内側ならではの軽快で良好な交通アクセス。
  • 物件名: Bark Lane 早稲田
  • 部屋番号: 0202
  • タイプ: E
  • 間取り: 1K
  • 専有面積: 25.09㎡
  • 家賃: 120,000円
  • 共益費: 12,000円
  • 敷金: 0ヶ月
  • 礼金: 0ヶ月
  • 保証金: 1ヶ月
  • 入居可能日: 2026/07/18
  • 契約・期間: 普通賃貸借2年契約(更新型)
  • 0202
  • 0202
  • 0202
  • 0202
  • 0202
  • 0202
  • 0202
  • 0202
  • 0202
  • 0202
  • 0202
  • 0202
  • 0202
  • 0202
  • 0202
別の部屋を見る