• メールで送る
  • 物件情報を スマートフォンで見るGo to https://maedacom.jp/extra/10447/

キングハウスサンゲンヂャヤ

キングハウス三軒茶屋

【エムぞう君99%審査OK】ペット可・追い焚き機能付きの設備充実アパートメント!

  • 東急田園都市線
    三軒茶屋
    徒歩2
  • 東急世田谷線
    西太子堂
    徒歩6

空室賃料一覧

キングハウス三軒茶屋キングハウスサンゲンヂャヤ

※お部屋探しのお客様用となります。
    •  
    • 部屋番号
    • タイプ
    • 間取り
    • 専有面積
    • 家賃
    • 共益費
    • 敷金
    • 礼金
    • 保証金
    • 入居可能日
    • 素材
    •  

空室はお問い合わせください

設備・仕様

設備の詳細については図面をご確認いただくかお問合せ下さい。

アクセスマップ

※緯度経度情報等の誤差により、実際の場所と異なる場合があります。 大きい地図で見る

物件概要

物件名 キングハウス三軒茶屋
住居表示 154-0004東京都世田谷区太子堂4丁目14-3アクセスマップ
交通
東急田園都市線「三軒茶屋」駅 徒歩2分
東急世田谷線「西太子堂」駅 徒歩6分
総戸数 2戸
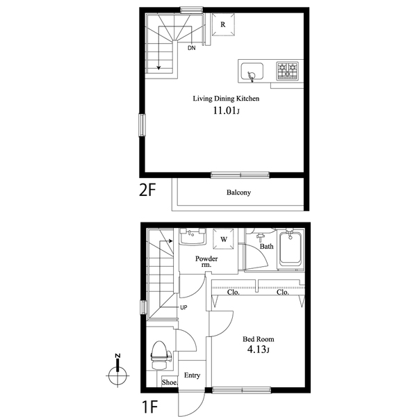
間取 1LDK
竣工 2013年3月5日
構造及び規模 木造 地上2階建
取引態様 代理
  • メールで送る
  • 物件情報を スマートフォンで見るGo to https://maedacom.jp/extra/10447/
お部屋探しのお客様用
お問合せフォーム

同じエリアの物件一覧

その他の物件情報

別の部屋を見る